製品紹介 / コンベヤ・搬送システム
フラット型スマートレギュラーコンベヤ
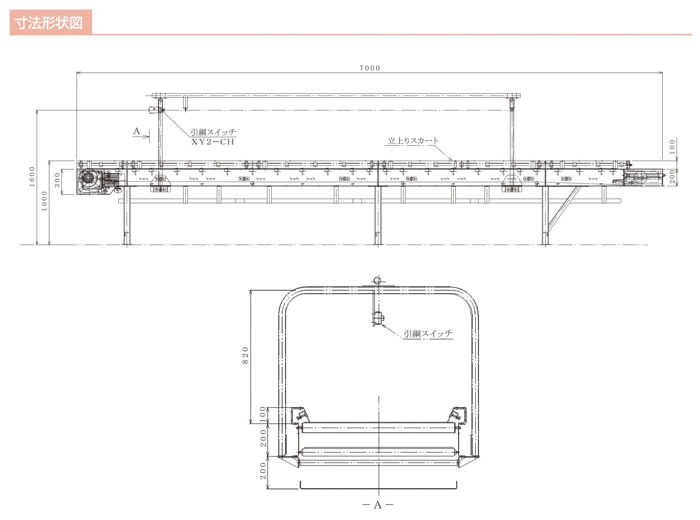
フラット型でフレーム側面は密閉構造のコンベヤ。安全対策を施した付属品を準備
安全対策を施しゴミ手選別の用途にも最適なコンベヤ。横サン採用のベルト選択時には急傾斜での搬送も可能。
緊急時にコンベヤを停止するアーチ型スイッチ等もオプションで選択可能
■搬送物
手選別(プラスチック類、ペットボトルなど)
■ベルト幅 (mm)
350・400・450・500・600・750・900
■機長 (m)
ご相談ください
手選別(プラスチック類、ペットボトルなど)
■ベルト幅 (mm)
350・400・450・500・600・750・900
■機長 (m)
ご相談ください



















